RCDFJ型強迫油循環自卸式盤式除鐵器
一、RCDFJ型強迫油循環自卸式盤式除鐵器說明
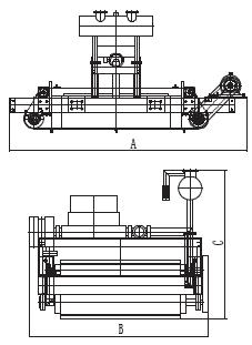
RCDFJ型強迫油循環自卸式盤式除鐵器適用于輸煤港口、大型火電廠、煤礦等對除鐵要求特別高的場所。用于懸掛在大型輸送皮帶上方,能有效清除煤中雷管炮線等細小鐵件,對清除雜鐵,提高物料品位起到重要的作用,自動卸鐵,維護簡便,滾筒腰鼓形結構,具備自動糾偏功能,特制全密封軸承座,能夠適應現場粉塵大的應用場合。二、RCDFJ型強迫油循環自卸式盤式除鐵器示意圖


三、RCDFJ型強迫油循環自卸式盤式除鐵器主要技術參數

四、RCDFJ型強迫油循環自卸式盤式除鐵器行業應用





